Home Styles and Floor Plans

Contrary to popular misconception, modular homes do not all look alike, and Unibilt’s designs vary in style and size. Whether your house needs to complement surrounding homes in your suburban neighborhood, or take advantage of special rural land features, we can build the home you want.

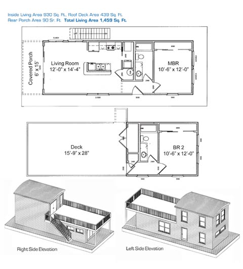
Start by selecting a floor plan. We can work with your existing plans, custom design a plan for you, or give you access to our library of floor

plans. Our floor plans come in four standard home styles: 2-Story, Cape Cod, Ranch and Specialty. Browse through the styles to see a few sample plans that you like. These represent only a portion of our vast downloadable floor plan library. Use them as is, or as a starting point for inspiring your new home. Our design specialists and your Unibilt Builder will work with you to incorporate your ideas to create the perfect home that is as unique as you are.

Walk-through Model Homes Available

CLICK HERE  

Two Story
Cape Cod
Ranch
Multi-Family
Duplex and Triplex
Vacation Homes
-

Select the search type
  • Site
  • Web
Search